G J
Out of Hours Emergency Our Fees Privacy Policy
pigeon

Arrange a Viewing

Palm House, 70 Sancroft Street, Vauxhall, London, SE11

Please complete a few details and we will be in touch shortly.
  • Date Format: DD slash MM slash YYYY

  • I consent to receiving further communications.
We do not share the information you provide with any third parties.
Call 0207 735 1888
View Details

Palm House, 70 Sancroft Street, Vauxhall, London, SE11

£650,000

Asking Price

2 Bedrooms
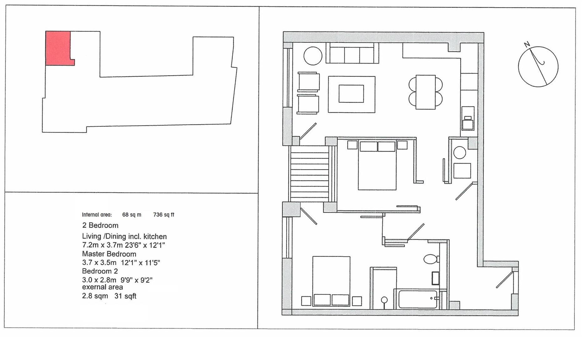
735sq.ft (68sq.m)
3rd Floor (With Lift) of 7 Floors
Bathroom
Open Plan Reception
Modern Integrated Kitchen
Balcony
Bicycle Storage
4.21% Gross Rental Yield
0.5 Miles to Vauxhall Station

Discover a well-presented 2-bedroom apartment for sale in Palm House, a modern development situated on Sancroft Street, just off Black Prince Road. Offering approximately 736sq.ft (68sq.m) of living space, this property features an open-plan reception room with a stylish integrated kitchen, perfect for entertaining. Enjoy your own private balcony, as well as a modern bathroom suite and the convenience of generous storage throughout.

Palm House benefits from its prime location a short walk from the River Thames, offering pleasant riverside walks. You'll find excellent transport connections within easy reach, with Kennington and Vauxhall stations providing rail, tube, and bus links. The area boasts a rich history and culture, with iconic landmarks such as the Houses of Parliament, Lambeth Palace, and the Imperial War Museum just a short stroll away. Residents also enjoy a diverse selection of bars, restaurants, shops, and leisure facilities right on their doorstep, as well as the lovely green space of Vauxhall Pleasure Gardens, making this a desirable London address.

Please note: This property is currently tenanted until May 2027 with the earliest date for vacant possession May 2026, generating a rental income of £2,280 per calendar month, representing a gross rental yield of 4.21%.

Please note furniture may differ to that shown in the current photos.

Call our office Monday to Thursday between 9am & 6pm,
Friday between 9am & 5pm 0207 735 1888 Saturdays by appointment

floorplan

Landlord Fees:

Letting only service: 9.60% inc VAT (8% + VAT)
This service applies to landlords who wish to let their property but will manage their own property for the duration of the tenancy. For example, if the rent is £100 per month the fee would be £9.60 per month.

Let only and rent collect: 12% inc VAT (10% + VAT)
This service is the same as the letting only although the rent will be paid to Garton Jones and we will pay it over to the landlord. For example, if the rent is £100 per month the fee would be £12 per month.

Management Service: 14.40% inc VAT (12% + VAT)
This service is for landlords who wish for Garton Jones to manage their property. Our expert management team will deal with all repairs and problems that may arise during the tenancy. For example, if the rent is £100 per month the fee would be £14.40 per month.

Short Let service: 30% inc VAT (25% + VAT)
This service applies to landlords who wish to let their property for a few weeks to a few months. For example, if the rent is £100 per month the fee would be £30 per month.

Tenancy Agreement: £240 inc VAT (£200 + VAT)
For drawing up a Tenancy Agreement at the start of a new tenancy.

Tenant Reference Per Tenant: £60 inc VAT (£50 + VAT)
Referencing of a tenant before the move in.

Cancelling a Let before a tenant moves in: £300 inc VAT (£250 + VAT)
Withdrawing from the let before it has taken place.

Deposit Registration Per Year: £36 inc VAT (£30 + VAT)
Registering the deposit per tenancy.

TDS Registration fee: £36 inc VAT (£30 + VAT)
Fee for registering tenants deposit.

Check in and Inventory Report: £153.36 inc VAT (£127.80 + VAT) - £394.92 inc VAT (£329.10 + VAT)
This will be done at the start of a new tenancy by a third party clerk. Please note price is subject to change and determined by the size of the property.

Check out: £132.24 inc VAT (£110.20 + VAT) - £315.22 inc VAT (£263.10 + VAT)
This will be done at the end of a tenancy by a third-party clerk. Please note price is subject to change and determined by the size of the property.

Vacant Management (per month): £144 inc VAT (£120 + VAT)
We will deal with the management of the property whilst the property is vacant and being remarketed.

Energy Performance Certificate (EPC): £120 inc VAT (£100 + VAT)
Energy performance certificates are a rating scheme to summarise the energy efficiency of buildings in the European Union.

Gas Safety Certificate (Required Annually): £84 inc VAT (£70 + VAT)
A testing of the gas to make sure it is safe to live in the property.

Annual PAT Test (Portable Appliance Testing) - Including 8 appliances: £96 inc VAT (80+ VAT)
In-service inspection & testing of electrical equipment.

Copy of your Head Lease (if Required) from the HM Land Registry: £4.80 inc VAT (£4 + VAT)
Copy of a legal document from HM Land Registry.

Copy documents: £30 inc VAT (£25 + VAT)
For the supply of a document that has previously been provided.

Renewal Tenancy Agreement: £120 inc VAT (£100 + VAT)
For drawing up the renewal Tenancy Agreement.

Consolidated Statement: £30 inc VAT (£25 + VAT)
Summary statement for transactions between a specific period.

Waiting at a property: £70 inc vat (£58.33 + VAT) per hour
Awaiting deliveries or attending with contractors.

Meeting contractors or third parties to assist with insurance claims: £120 inc VAT (£100 + VAT)

Arranging works or refurbishment over £1000: 12% inc VAT (10% + VAT) of net costs of the works
- Getting quotes, if you then organise the work yourself: £600 inc VAT (£500 + VAT)
- Getting quotes, if you then decide against any work: £120 inc VAT (£100 + VAT)

Transferring AST deposit to landlord (or other agent) during tenancy: £120 inc VAT (£100 + VAT)

Sending CHAPS (same day payments) in the UK: £30 inc VAT (£25 + VAT)

Making a payment outside the UK: £30 inc VAT (£25 + VAT)

Change in ownership set up: £60 inc VAT (£50 + VAT) Per Person
If the Landlord sells or transfers the property during the tenancy.

Serving a Section 21 notice (included with management service): £60 inc VAT (£50 + VAT)

Serving a Section 8 notice (included with management service): £60 inc VAT (£50 + VAT)

Attending Court: £120 inc VAT (£100 + VAT) Per Hour
If a member of the Garton Jones staff must attend court on your behalf.

Tenants Fees

Company Let

Before you move in:

We will take a holding deposit which is equivalent to 1 weeks rent, this will ensure that we cease marketing and that the property is placed under offer.

Company Referencing Fee: £120 inc VAT (£100 + VAT)
Referencing of company.

Tenancy Agreement: £180 inc VAT per tenancy (£150 + VAT)
To draw up the Tenancy Agreement.

During your tenancy:

Renewal Tenancy Agreement: £70 inc VAT (£58.33 + VAT)
To draw up the renewal Tenancy Agreement should you wish to renew.

Admin fee for late rent payments: £30 inc VAT (£25 + VAT)
Should we have to chase for the tenants late rent on 3 or more occasions.

Rent paid to Garton Jones in error: £30 inc VAT (£25 + VAT)
Should you pay your rent to Garton Jones when it should be paid to the Landlord.

Deed of assignment: £150 inc VAT (£125 + VAT)
Addendum to the Tenancy Agreement should there be a change to the original Tenancy Agreement

Ending your tenancy:

Check out and Inventory: £110- £270 inc VAT (£91.67 - £225 + VAT)
This will be done at the end of the tenancy by a third-party clerk. Please note price is subject to price increase and determined by the size of the property.

Assured Shorthold Tenancy (AST) Let:

Change to original tenancy agreement: £50 inc VAT (£41.67 + VAT)
If the tenant requests a change to the Tenancy Agreement e.g. a change of sharer or permission to keep pets in the property.

Calculate Your Stamp Duty

Purchase price

Calculate Stamp duty to pay: £0.00

Stamp Duty to pay:

Actual rate:

How this result was calculated

Tax Band % Rate Taxable Sum Tax
£0 to £250,000 0%
£250,001 to £925,000 2%
£925,001 to £1,500,000 5%
£1,500,000+ 10%
Disclaimer Our calculator uses current rates for an accurate estimate, but always consult a professional for tailored advice.

Arrange a Viewing - Palm House, 70 Sancroft Street, Vauxhall, London, SE11

Please complete a few details and we will be in touch shortly.
  • Date Format: DD slash MM slash YYYY

  • I consent to receiving further communications.
We do not share the information you provide with any third parties.
Back