G J
Out of Hours Emergency Our Fees Privacy Policy
pigeon

Arrange a Viewing

Compass House, Chelsea Creek, Fulham, SW6

Please complete a few details and we will be in touch shortly.
  • Date Format: DD slash MM slash YYYY

  • I consent to receiving further communications.
We do not share the information you provide with any third parties.
Call 020 7824 7090
View Details
LET AGREED

Compass House, Chelsea Creek, Fulham, SW6

£1,600pw Fees apply Available now

Sub Penthouse – 7th Floor
Three Bedrooms
Furnished
1475 Sq.ft (137 Sq.m)
Two Balconies
Spacious Reception Room
Kitchen / Breakfast Room
24 Hour Concierge, Residents Gym & Spa
Close To Imperial Wharf Station
EPC - B (81)

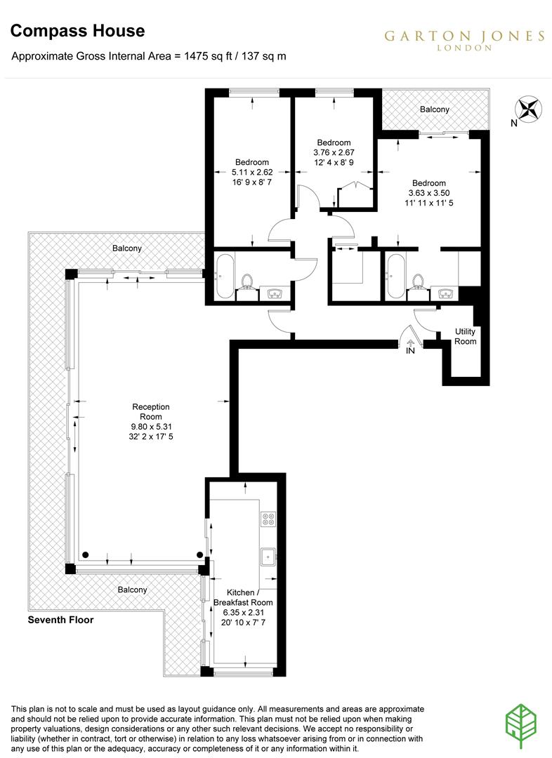
A 3-bedroom SUB PENTHOUSE located within the highly desirable Berkeley Home’s built development at Chelsea Creek SW6. This spacious contemporary interior designed apartment which has recently been redecorated offers an abundance of space 1475sqft (137sqm) and consists of a master bedroom with balcony, excellent built-in storage, luxury bathroom, further two double bedrooms and a guest bathroom, utility room, spacious open plan reception room with access to a wraparound balcony with far reaching views, fully fitted kitchen / breakfast room with integrated appliances. The development offers a resident’s gym & spa, 24-hour concierge & communal landscaped gardens. Chelsea Creek is located a short distance from the amenities of the Kings Road, and moments from Imperial Wharf over ground station which is one stop from both West Brompton station (district line) and Clapham Junction.

**Please note that the furniture may differ to that shown in the current photos**

6 Weeks Deposit - £9600
12-Month Tenancy - 6-month break clause – must allow sales access
Council Tax – London Borough of Hammersmith & Fulham – Band H

EPC - B

Call our office Monday to Thursday between 9am & 6pm,
Friday between 9am & 5pm 020 7824 7090 Saturdays by appointment

floorplan

Landlord Fees:

Letting only service: 9.60% inc VAT (8% + VAT)
This service applies to landlords who wish to let their property but will manage their own property for the duration of the tenancy. For example, if the rent is £100 per month the fee would be £9.60 per month.

Let only and rent collect: 12% inc VAT (10% + VAT)
This service is the same as the letting only although the rent will be paid to Garton Jones and we will pay it over to the landlord. For example, if the rent is £100 per month the fee would be £12 per month.

Management Service: 14.40% inc VAT (12% + VAT)
This service is for landlords who wish for Garton Jones to manage their property. Our expert management team will deal with all repairs and problems that may arise during the tenancy. For example, if the rent is £100 per month the fee would be £14.40 per month.

Short Let service: 30% inc VAT (25% + VAT)
This service applies to landlords who wish to let their property for a few weeks to a few months. For example, if the rent is £100 per month the fee would be £30 per month.

Tenancy Agreement: £240 inc VAT (£200 + VAT)
For drawing up a Tenancy Agreement at the start of a new tenancy.

Tenant Reference Per Tenant: £60 inc VAT (£50 + VAT)
Referencing of a tenant before the move in.

Cancelling a Let before a tenant moves in: £300 inc VAT (£250 + VAT)
Withdrawing from the let before it has taken place.

Deposit Registration Per Year: £36 inc VAT (£30 + VAT)
Registering the deposit per tenancy.

TDS Registration fee: £36 inc VAT (£30 + VAT)
Fee for registering tenants deposit.

Check in and Inventory Report: £153.36 inc VAT (£127.80 + VAT) - £394.92 inc VAT (£329.10 + VAT)
This will be done at the start of a new tenancy by a third party clerk. Please note price is subject to change and determined by the size of the property.

Check out: £132.24 inc VAT (£110.20 + VAT) - £315.22 inc VAT (£263.10 + VAT)
This will be done at the end of a tenancy by a third-party clerk. Please note price is subject to change and determined by the size of the property.

Vacant Management (per month): £144 inc VAT (£120 + VAT)
We will deal with the management of the property whilst the property is vacant and being remarketed.

Energy Performance Certificate (EPC): £120 inc VAT (£100 + VAT)
Energy performance certificates are a rating scheme to summarise the energy efficiency of buildings in the European Union.

Gas Safety Certificate (Required Annually): £84 inc VAT (£70 + VAT)
A testing of the gas to make sure it is safe to live in the property.

Annual PAT Test (Portable Appliance Testing) - Including 8 appliances: £96 inc VAT (80+ VAT)
In-service inspection & testing of electrical equipment.

Copy of your Head Lease (if Required) from the HM Land Registry: £4.80 inc VAT (£4 + VAT)
Copy of a legal document from HM Land Registry.

Copy documents: £30 inc VAT (£25 + VAT)
For the supply of a document that has previously been provided.

Renewal Tenancy Agreement: £120 inc VAT (£100 + VAT)
For drawing up the renewal Tenancy Agreement.

Consolidated Statement: £30 inc VAT (£25 + VAT)
Summary statement for transactions between a specific period.

Waiting at a property: £70 inc vat (£58.33 + VAT) per hour
Awaiting deliveries or attending with contractors.

Meeting contractors or third parties to assist with insurance claims: £120 inc VAT (£100 + VAT)

Arranging works or refurbishment over £1000: 12% inc VAT (10% + VAT) of net costs of the works
- Getting quotes, if you then organise the work yourself: £600 inc VAT (£500 + VAT)
- Getting quotes, if you then decide against any work: £120 inc VAT (£100 + VAT)

Transferring AST deposit to landlord (or other agent) during tenancy: £120 inc VAT (£100 + VAT)

Sending CHAPS (same day payments) in the UK: £30 inc VAT (£25 + VAT)

Making a payment outside the UK: £30 inc VAT (£25 + VAT)

Change in ownership set up: £60 inc VAT (£50 + VAT) Per Person
If the Landlord sells or transfers the property during the tenancy.

Serving a Section 21 notice (included with management service): £60 inc VAT (£50 + VAT)

Serving a Section 8 notice (included with management service): £60 inc VAT (£50 + VAT)

Attending Court: £120 inc VAT (£100 + VAT) Per Hour
If a member of the Garton Jones staff must attend court on your behalf.

Tenants Fees

Company Let

Before you move in:

We will take a holding deposit which is equivalent to 1 weeks rent, this will ensure that we cease marketing and that the property is placed under offer.

Company Referencing Fee: £120 inc VAT (£100 + VAT)
Referencing of company.

Tenancy Agreement: £180 inc VAT per tenancy (£150 + VAT)
To draw up the Tenancy Agreement.

During your tenancy:

Renewal Tenancy Agreement: £70 inc VAT (£58.33 + VAT)
To draw up the renewal Tenancy Agreement should you wish to renew.

Admin fee for late rent payments: £30 inc VAT (£25 + VAT)
Should we have to chase for the tenants late rent on 3 or more occasions.

Rent paid to Garton Jones in error: £30 inc VAT (£25 + VAT)
Should you pay your rent to Garton Jones when it should be paid to the Landlord.

Deed of assignment: £150 inc VAT (£125 + VAT)
Addendum to the Tenancy Agreement should there be a change to the original Tenancy Agreement

Ending your tenancy:

Check out and Inventory: £110- £270 inc VAT (£91.67 - £225 + VAT)
This will be done at the end of the tenancy by a third-party clerk. Please note price is subject to price increase and determined by the size of the property.

Assured Shorthold Tenancy (AST) Let:

Change to original tenancy agreement: £50 inc VAT (£41.67 + VAT)
If the tenant requests a change to the Tenancy Agreement e.g. a change of sharer or permission to keep pets in the property.

Calculate Your Stamp Duty

Purchase price

Calculate Stamp duty to pay: £0.00

Stamp Duty to pay:

Actual rate:

How this result was calculated

Tax Band % Rate Taxable Sum Tax
£0 to £250,000 0%
£250,001 to £925,000 2%
£925,001 to £1,500,000 5%
£1,500,000+ 10%
Disclaimer Our calculator uses current rates for an accurate estimate, but always consult a professional for tailored advice.

Arrange a Viewing - Compass House, Chelsea Creek, Fulham, SW6

Please complete a few details and we will be in touch shortly.
  • Date Format: DD slash MM slash YYYY

  • I consent to receiving further communications.
We do not share the information you provide with any third parties.
Back